赤砂崎公園における設置管理許可について
最終更新日: 2026年2月14日
Shimosuwa Akasunasaki Park

★ トピック ★
2026.02.14
★ 複合施設の名称及びロゴが決定しました!(詳細はこちら。)
★ 2026年4月9日(木)11時 カフェレストランがグランドオープン!
目 次
01 目 的
02 概 要
03 施設等予定者の選定
04 協定の締結
05 複合施設の起工式
06 設置許可
07 複合施設の名称及びロゴ
08 主なスケジュール(予定)
01 目 的
下諏訪町では、令和6年度策定した「グランドデザイン(諏訪湖畔地区)」の実現に向け、赤砂崎公園 右岸広場 砥川ふれあい渚において、都市公園法第5条「設置管理許可制度」を活用し、民間事業者の方が公園施設を設置することで公園の更なる利活用促進等を図ります。

02 概 要
民間事業者の方に公園施設の整備~管理運営などを行っていただきます。
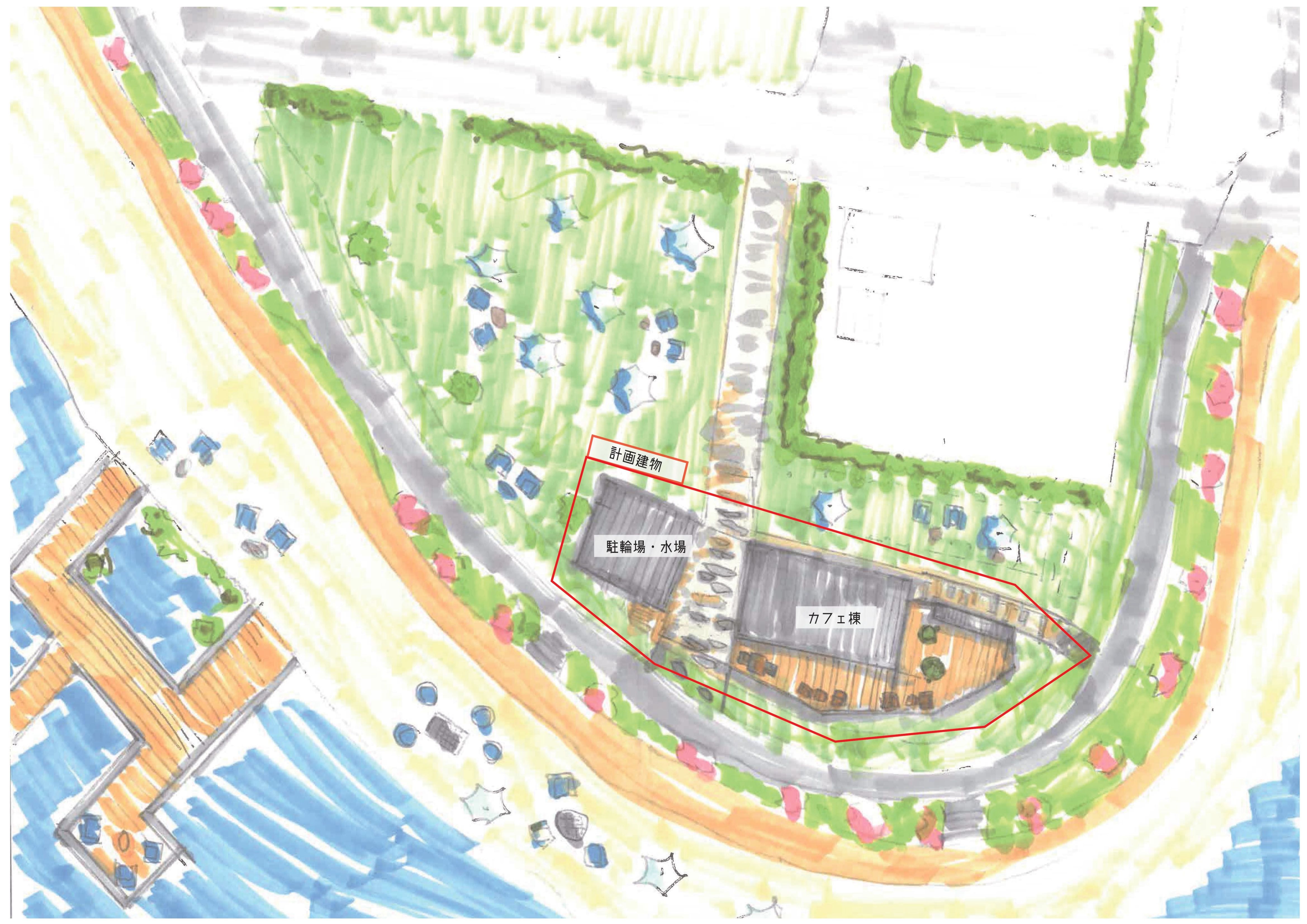
事業区域
赤砂崎公園 右岸広場 砥川ふれあい渚 (面積2,541.11㎡)

03 設置等予定者の選定
町が設置した評価委員会により、以下の事業者を設置等予定者に選定しましたのでお知らせします。
設置等予定者 : アルピコ・クロスプロジェクト共同事業体
代表法人 アルピコリゾート&ライフ株式会社(長野県茅野市北山4035-170)
コンセプト :地域と人、人と人を結ぶ町の拠点、諏訪湖エリアの新たな集いの場、観光資源の創造
事 業 内 容 : 飲食店、レジャー・アウトドアレンタル、キャンプ場の運営
04 協定の締結
町とアルピコ・クロスプロジェクト共同事業体は、「赤砂崎公園 右岸広場 砥川ふれあい渚における設置管理事業に関する協定」を締結しましたのでお知らせします。
協定の内容についてはこちら。(10MB)(PDF)

05 複合施設の起工式
建設される複合施設(カフェレストランやバーベキューサイト、キャンプサイト)の起工式が執り行われました。

06 設置許可
町はアルピコ・クロスプロジェクト共同事業体へ都市公園法第5条第2項及び下諏訪町都市公園規則第2条第3号に基づく公園施設の設置許可を行いましたのでお知らせします。
これにより工事が始まります。皆さまにはご不便をおかけしますがご理解の程よろしくお願いします。
工事現場では重機等が動いておりますので、近づかないようお願いします。また小さなお子さまをお連れの保護者の方もお子さまから目を離さないようお願いします。



大きくご覧になりたい方はこちら。(2MB)(PDF)
07 複合施設の名称及びロゴ
多くの皆さまからの温かく想いのこもったアイデアありがとうございました。
厳正なる選考の結果、名称及びロゴを決定いたしました。

読み方:スワノワ
(名称)
地域を表す「諏訪(Suwa)」と、つながりを表す「輪(Wa)」を組み合わせ、人と人、地域の皆さまと来訪者の方が自然につながり、新たな交流やにぎわいが生まれる場所でありたい、という想いが込められています。
(ロゴ)
「輪」の中に、眼前に広がる諏訪湖とその水面越しに望む豊かな山々の景色を曲線でデザインし、人々を繋ぐ結びの綱にも見える線は、「Suwa」と「Wa」の頭文字を型取り、赤砂崎公園のコンセプトでもある「5つの輪(和)」から構成しています。また外形の輪は真円ではなく、かすかに膨らませることで、デジタル時代にあっても豊かな自然の中でフィジカルに愉しむことを表現しています。
名称募集の概要及び授賞式の様子については、こちら。(314KB)(PDF)
08 主なスケジュール(予定)
協定の締結 2025年 5月29日
設置管理許可 2025年 9月 5日
整備工事着手 2025年 9月 8日
公園施設供用開始 2026年 4月 9日 11時~
地図
赤砂崎公園
砥川ふれあい渚
関連リンク
このページに関するアンケート
このページに関するお問い合わせ
- 建設水道課 都市整備係
- 下諏訪町4613-8
電話番号:0266-27-1111